How to use the PrinterLogic Application
This article will help a new user or existing user to utilize the PrinterLogic application to add, remove, or manage installed printers.
Accessing the Application:
The PrinterLogic application can be accessed two ways,
- Open the application via the Task-tray icon, found here in your computer. Left click on the icon to automatically open the application. This will open a new tab or browser window.

- Open your web-browser and navigate to: https://bioderm.printercloud.com.

Using the Application:
Adding a printer to your computer:
- Open the application using either of the steps above.
- On the left panel, navigate to which building houses the printer you're looking to access.

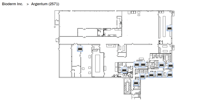
- The main window will open, and display not only a map of the building, but also a number of printer buttons on the map itself as well as a list of printers at the bottom.


- Simply click on any of the buttons, and on the popup verify the printer you're trying to install is the proper one, and press "Install."

- The popup will prompt to confirm the installation. You can additionally set the printer as your default printer as-well in this dialogue box. Press "Yes" and PrinterLogic will install the printer for you automatically.

Check which Printers are installed:
- In the "Accessing the Application" section above, find the icon on your taskbar, but instead of left clicking on it, right click on it to open a small menu.

- Select "View Installed Printers."
- A new window will open, and show all printers currently installed.

Delete a printer:
- On the right click menu in the "Check which Printers are Installed" section, select "Delete Printer" instead.
- Select which printer you wish to delete on this new dialogue box and select "Delete Printer." You can also set the default printer from this menu.
